Straatkast RVS incl. sokkel - mini

- Je hebt maatwerk nodig of hulp bij het samenstellen van meerdere producten
- Je hebt nog een vraag voordat je wilt betalen
- Je kunt een specifiek product niet vinden
- Je hebt een hoog orderbedrag
- Je hebt grote aantallen van een product nodig
- Binnen maximaal 24 uur (ma-vr) ontvang je van ons een offerte per e-mail
- Wil je bestellen, dan kan dit eenvoudig via het voorstel dat je van ons ontvangt
- Voor 15:00 besteld, vandaag verzonden
- Advies in onze nieuwe showroom
- Kennis & ervaring
- Professionele montage mogelijk
- Diverse betaalmogelijkheden
Plus- en minpunten
- Kleur: RAL 7037
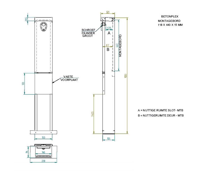
- 1000x150x103 mm (hxbxd)
- Incl. slot en sleutel
Productomschrijving
Deze kleine standaard RVS kast is ideaal voor toepassing waar kleine onderdelen moeten worden voorzien van een behuizing. De kast heeft een breedte van slechts 150 mm en een diepte van 103 mm. De behuizing is voorzien van een steekdeur, vaste fundatie, montagebord en slot met sleutel. Het RVS 304 materiaal wordt standaard geleverd in RAL 7037. De kast heeft een beschermingsklasse conform IP43. De inbouwruimte is ongeveer 80% van de aangegeven diepte. De afmetingen van deze kast zijn 150x1000x103 mm.
Specificaties
| Afmetingen | 1000x150x103 mm (hxbxd) |
|---|---|
| Montagebord | 520x560 (hxb) |
| Materiaal | RVS 304 |
| Beschermingsgraad | IP43 |
| Kleur | RAL 7037 |
Video